服务热线
136-7911-1256
    
        产品简介:
SSQ型铸铁伸缩器也称伸缩节、膨胀节、补偿器、伸缩接头。伸缩器在一定范围内可轴向伸缩,也能在一定的角度内克服管道对接不同轴向而产生的偏移,能极大的方便阀门管道的安装与拆卸,在管道允许伸缩量中可以自由伸缩,一旦越过其最大伸缩量就起到限位,确保管道的安全运行。
                    销售热线:
                    
                    
                        13679111256
                    
                
产品介绍
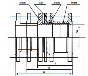
名称:SSQ型铸铁伸缩器  
    SSQ型铸铁伸缩器也称伸缩节、膨胀节、补偿器、伸缩接头。伸缩器在一定范围内可轴向伸缩,也能在一定的角度内克服管道对接不同轴向而产生的偏移,能极大的方便阀门管道的安装与拆卸,在管道允许伸缩量中可以自由伸缩,一旦越过其大伸缩量就起到限位,确保管道的安全运行。
    SSQ型铸铁伸缩器主要为保障管道安全运行,具有以下作用:补偿吸收管道轴向、横向、角向热变形;吸收设备振动,减少设备振动对管道的影响;吸收地震、地陷对管道的变形量。   
 
产品特点
铸铁伸缩器详细介绍:
    1. 该产品为各种给排水管道、水塔、水泵、水表、阀门的安装拆换提供了极大方便,给长距离管路因温差伸缩起到了很好的调节作用。   
    2. 该产品内管材分为铸铁( HT )、镀锌( DX )和钢制( SF )三种。工作压力分 PN6 、 PN10 、 PN16 三种。
    3. 安装前须松开压盘螺栓,将该产品拉至安装长度,然后用对角法拧紧,切勿压偏,如架空使用,两端须安装相应的固定支架。
   4. 法兰连接采用 GB4216.3 - 4126.5 标准。 
5. 如选用其它规格可另行生产。
铸铁伸缩器用途:
    伸缩器是泵、阀门,管道等设备与管道连接的新产品,通过全螺栓把它们连接起来,使其成为整体,并有一定的位移量,方便安装。可承受管线的轴向压力。这样就可以在安装维修时,根据现场安装尺寸进行调整,在工作时,不仅提高工作效率,而切对泵、阀们等管道设备起到一定保护作用。
铸铁伸缩器适用介质:
  本产品适用于输送海水、淡水、冷热水、饮用水、生活污水、原油、燃油、润滑油、成品油、空气、煤气、温度不高于250度的蒸汽和颗粒粉状等介质。
铸铁伸缩器使用范围:
由于伸缩器具有良好的综合性能,所以它广泛用于化工、建筑、给水、排水、石油、轻重工业、冷冻、卫生、水暖、消防、电力等基础工程。
伸缩器具体分类:
SSQ型铸铁伸缩器,SF钢制伸缩器,CS型热力管道伸缩器,SSQ-1型套管式伸缩器,SSQ-2型套管式伸缩器,SSQ-3型套管式伸缩器,钢型套管式伸缩器,插口式伸缩器,承盘式伸缩器,两端法兰限位防拉脱压盘式伸缩器,法兰式伸缩器,两端法兰伸缩器,两端法兰压盘式限位伸缩器,耐高压灰管大位移伸缩器。
铸铁伸缩器安装注意事项:
1、伸缩器在安装前应先检查其型号、规格及管道配置情况,必须符合设计要求。
2、对带内套筒的伸缩器应注意使内套筒子的方向与介质流动方向一致,铰链型伸缩器的铰链转动平面应与位移转动平面一致。
3、需要进行“冷紧”的伸缩器,预变形所用的辅助构件应在管路安装完毕后方可拆除。
4、严禁用伸缩器变形的方法来调整管道的安装超差,以免影响伸缩器的正常功能、降低使用寿命及增加管系、设备、支承构件的载荷。
5、安装过程中,不允许焊渣飞溅到波壳表面,不允许波壳受到其它机械损伤。 
6、管系安装完毕后,应尽快拆除波伸缩器上用作安装运输的黄色辅助定位构件及紧固件,并按设计要求将限位装置调到规定位置,使管系在环境条件下有充分的补偿能力。
7、伸缩器所有活动元件不得被外部构件卡死或限制其活动范围,应保证各活动部位的正常动作。
8、水压试验时,应对装有伸缩器管路端部的次固定管架进行加固,使管路不发生移动或转动。对用于气体介质的伸缩器及其连接管路,要注意充水时是否需要增设临时支架。水压试验用水清洗液的96氯离子含量不超过25PPM。


产品性能
彩运网cy123 SSQ型铸铁伸缩器安装数据表
| 公称通径 | 小长度L | 安装长度L1 | 大长度L2 | 
| 40 | 140 | 170 | 200 | 
| 50 | 140 | 170 | 200 | 
| 65 | 160 | 205 | 250 | 
| 80 | 180 | 225 | 270 | 
| 100 | 200 | 250 | 300 | 
| 125 | 220 | 250 | 300 | 
| 150 | 220 | 270 | 320 | 
| 200 | 240 | 290 | 320 | 
| 250 | 260 | 315 | 370 | 
| 300 | 280 | 340 | 400 | 
| 350 | 290 | 350 | 410 | 
| 400 | 300 | 360 | 420 | 
| 450 | 320 | 385 | 450 | 
| 500 | 320 | 385 | 450 | 
| 600 | 350 | 415 | 480 | 
| 700 | 370 | 440 | 510 | 
| 800 | 390 | 460 | 530 | 
| 900 | 420 | 495 | 570 | 
| 1000 | 440 | 515 | 590 | 
| 1200 | 490 | 570 | 650 | 
| 1400 | 520 | 605 | 690 | 
| 1600 | 550 | 640 | 730 | 
| 1800 | 590 | 680 | 770 | 
| 2000 | 630 | 720 | 810 | 
| 2200 | 670 | 760 | 850 | 
| 2400 | 710 | 800 | 890 | 
| 2600 | 750 | 840 | 930 | 
| 2800 | 290 | 880 | 970 | 
| 3000 | 840 | 920 | 1010 | 
| 3200 | 880 | 960 | 1050 | 
| 3400 | 920 | 1000 | 1090 | 
下一篇:
RS型柔性套管式伸缩器联系人: 李经理
电话: 13679111256
QQ:603033916
彩运网cy123座机: 02983331833
地址: 西安市未央区大明宫北辰五金批发基地1区7排11-14号
                扫一扫关注我们